Lugao Power Co., Ltd. има специализиран цех, посветен на производството на триполюсен високоволтов 220kv 330kv sf6 газов прекъсвач. Неговата технология за проектиране е водеща в индустрията. Прекъсвачите от серия LW SF6 използват камера за гасене на дъга с едно налягане и технология за гасене на дъгата със самозахранване, използвайки газ серен хексафлуорид като изолираща и дъгогасителна среда. Отделна дъгогасителна камера генерира въздушен поток по време на процеса на отваряне, охлаждайки дъгата и прекъсвайки тока.
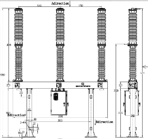
Триполюсните газови прекъсвачи с високо напрежение 220 kv 330 kv sf6 са триполюсни/еднополюсни променливотокови 50 Hz/60 Hz външно високоволтово преносно и преобразуващо оборудване, използвано за отваряне или изключване на номинален ток, ток на повреда или превключване на линии, защита, управление и работа на системи за пренос и разпределение на електроенергия. Те могат да извършват операции по отваряне, затваряне и бързо автоматично повторно затваряне. Номиналните напрежения варират от 45 kV до 330 kV, а основната система се състои от опорна порцеланова втулка, дъгогасителен блок, хидравличен/пружинен задвижващ механизъм и интелигентен контролер на плътността. Независимата дъгогасителна камера генерира сгъстен въздушен поток по време на процеса на отваряне за ефективно охлаждане на дъгата и прекъсване на тока. Напълно затворената конструкция за циркулация на газ осигурява надеждна работа в различни среди. Отличават се с проста структура, лесна и бърза поддръжка, ниска консумация на енергия, ниски изисквания за работна енергия, висока надеждност, лесен монтаж и нисък шум.

| Тип |
Външна, порцеланова втулка |
| Честота |
50Hz/60Hz |
| Работно напрежение на системата |
132kV |
| Номинално напрежение |
145kV/220kV/330kV |
| Оперативна последователност |
O-0,3s-CO-3min-CO |
| Брой спирачни намотки |
2 |
| Брой затварящи намотки |
1 |
| Брой помощни контакти: |
10NO,10NC |
| Охлаждаща среда |
SF6 |
| Брой прекъсвания на фаза |
1 |
| Времето, необходимо на двигателя за зареждане на пружинната форма напълно разредена до напълно заредена позиция |
<30Sc |
| Вид на работния механизъм |
Пружинно зареждане |
| Номинална честота на издържане на напрежение (на надморска височина по-малка от 1000 m) |
325kV |
|
Номинален импулс на мълния издържа на напрежение (на надморска височина под 1000 м) |
750kV |
| Работен механизъм |
Еднополюсен, триполюсен |
| Възраст на пълзене Разстояние |
31 mm/kV |
| Номинален ток на прекъсване |
31,5 kA/3 сек |
| Номинален нормален ток |
3150A |
| Номинален ток на късо съединение |
80kA пик |



220kV SF6 Тежко -натоварен прекъсвач на веригата на високо напрежение
40,5kV високо напрежение на открито SF6 газова верига
126kV външно високо напрежение SF6 прекъсвач на веригата
Трифазен високоволтов 35KV 40.5KV вакуумен прекъсвач с трансформатор
ZW7 33kv 40.5kv тип външна подстанция високоволтов вакуумен прекъсвач